Guide Price £270,000 Available
  • Ground floor over 60's apartment
  • Gated development
  • Landscaped communal gardens
  • Communal lounge/kitchen
  • Permit parking
  • Pets welcome (subject to approval)
  • 24 hour emergency care line
  • On site lifehost Monday to Friday 9am to 4pm
  • Lift access to all floors
  • No onward chain

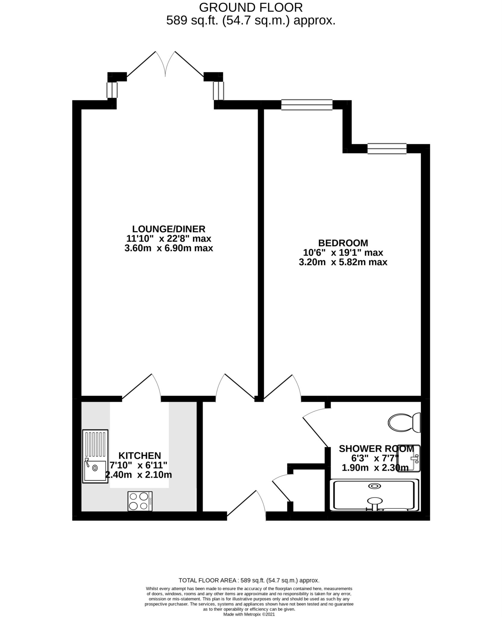
Apartment 7 is a stunning ground floor apartment offering well planned accommodation which comprises a spacious hallway with utility cupboard, a delightful kitchen with integral NEFF appliances set under a silestone worktop. A spacious lounge/diner overlooks the front aspect of the development with doors leading out to a private patio area. The bedroom is a generous size with built-in wardrobes and is complemented by a luxury shower room which offers porcelanosa wall and floor tiles, premium Villeroy & Boch sanitary ware and heated towel rails.

Created exclusively for those over 60, Fleur-de-Lis Marlborough is located within easy access of the bustling high street. This charming community also boasts a communal lounge and beautifully landscaped gardens, where residents can enjoy social gatherings and events. A dedicated on-site team is also on hand to ensure the smooth running of this beautiful community.

Reserve one of our select Pegasus homes at Marlborough, by 31st January 2026 and we'll offer you a choice of three fantastic rewards:

- 5% discount from the advertised purchase price or
- Stamp duty paid (payable on the purchase of the new property) or
- 50% off service charge payment for 5 years

Customers can only choose one incentive per transaction.


Term of lease 250 years from 1st February 2017 with 242 years remaining
Service Charge £5,778 pa (reviewed annually)
Ground rent £525 pa
The next Ground Rent Review date: Ground rent reviewed as of 1st February 2022 and every fifth anniversary thereafter.
Council tax band : D
EPC: B



Lease Length
242 Years

Notice
Please note we have not tested any apparatus, fixtures, fittings, or services. Interested parties must undertake their own investigation into the working order of these items. All measurements are approximate and photographs provided for guidance only.


/// cashiers.gems.decisions is the what3words address for the best entrance. what3words has given every 3 metre square in the world a unique combination of 3 random words.

Floor Plan
EER Chart

The Energy-Efficiency Rating is a measure of a home's overall efficiency. The higher the rating, the more energy-efficient the home is, and the lower the fuel bills are likely to be.

Utility Supply Type
Electric Mains Supply
Gas Mains Supply
Water Mains Supply
Sewerage Mains Supply
Broadband Unknown
Telephone Unknown

Other Items Description
Heating Gas Central Heating
Garden/Outside Space Yes
Parking Yes
Garage No

Broadband Coverage Highest Available Download Speed Highest Available Upload Speed
Standard 18 Mbps 1 Mbps
Superfast 80 Mbps 20 Mbps
Ultrafast 1000 Mbps 1000 Mbps

Mobile Coverage Indoor Voice Indoor Data Outdoor Voice Outdoor Data
EE Enhanced Enhanced Enhanced Enhanced
Three Likely Likely Enhanced Enhanced
O2 Enhanced Likely Enhanced Enhanced
Vodafone Likely Likely Enhanced Enhanced

Broadband and Mobile coverage information supplied by Ofcom.


marker icon